1
/
of
10
3 - 4 Bed 2.5 - 3.5 Bath
2000 Sq Ft. - Magnolia Cottage 2
2000 Sq Ft. - Magnolia Cottage 2
Regular price
$1,695.00
Regular price
Sale price
$1,695.00
Unit price
/
per
Couldn't load pickup availability
To learn more about what's included with our plans Click here
Would you like to modify this plan? Submit a request form here
Plan Description
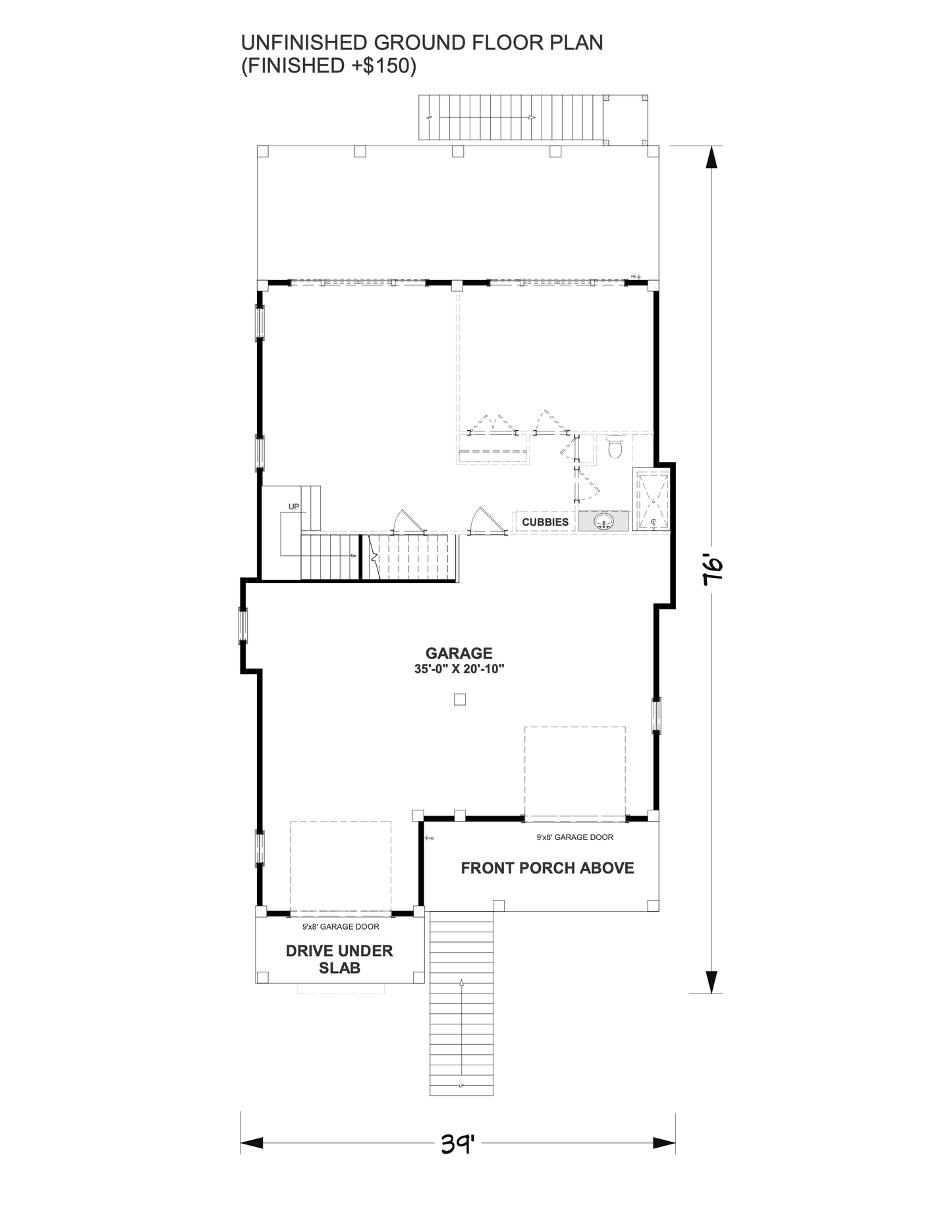
Sq Ft. - 2000 | Bed - 3 - 4 | Bath - 2.5 - 3.5 | Stories - 2 | Cars - 2 | Optional: Finished Main Level Plan (Inquire)
Introducing the 2000 Sq Ft. Magnolia Cottage 2, a coastal beach home designed for narrow lots. The main level offers parking for 2 cars and an optional expansion space of 900 sq ft. The master suite features a 5-fixture bath and spacious walk-in closet. Enjoy open and airy living spaces, including a rectangular kitchen island, and take in the views with sliding doors in the dining and living rooms.
Dimensions: Width: 39' 0" | Depth: 76' 0" | Max Ridge Height: 35' 0"
Exterior Walls: 2x6
Ceiling Height: First Floor: 10' | Second Floor: 9'
Foundation Type: Piling, Pier, Walkout
Roof Details: Primary Pitch: 9 on 12 | Framing Type: Truss
Garage: Type: Attached, Drive Under | Area: 1000 sq. ft. | 2 Cars | Front Entry
Share









