1
/
of
27
4 Bed 4 Bath
2797 Sq. Ft. - Haddies Hideaway 2700R
2797 Sq. Ft. - Haddies Hideaway 2700R
Regular price
$1,845.00
Regular price
Sale price
$1,845.00
Unit price
/
per
Couldn't load pickup availability
To learn more about what's included with our plans Click here
Would you like to modify this plan? Submit a request form here
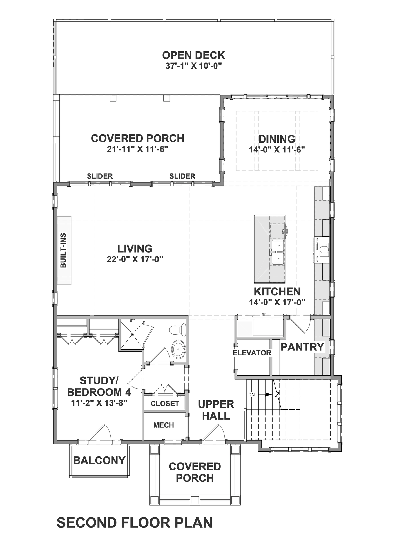
Plan Description
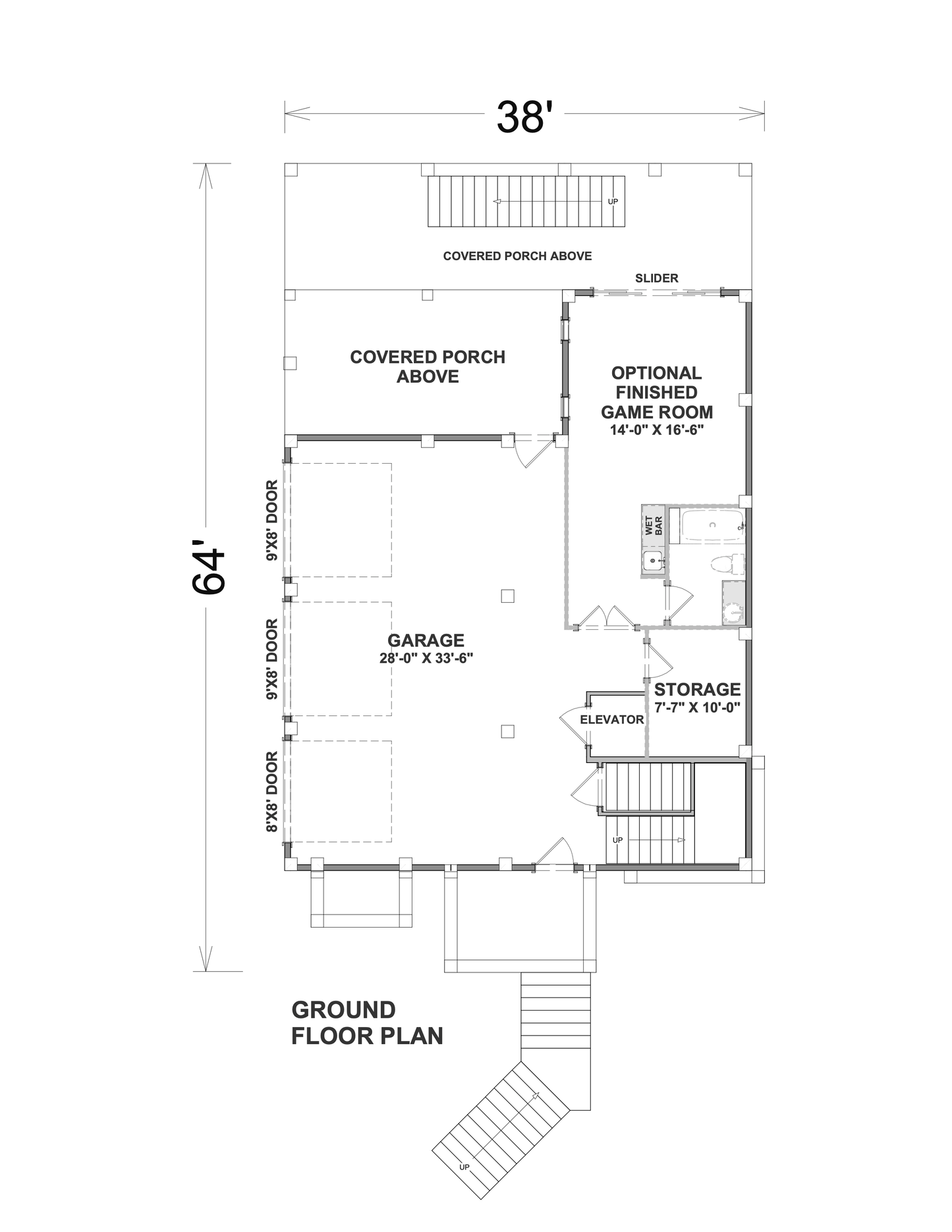
Sq Ft. - 2797 | Bed - 4 | Bath - 4 | Stories - 2 | Cars - 2 (Optional Bonus Room: Inquire)
This stunning Low Country Craftsman plan maximizes views of the surrounding landscape with shared living spaces and porches on the top level. The spacious ensuite, island kitchen, and a game room option make this 3-bedroom home ideal for entertaining and storage. Don't miss the natural light-filled pantry and dedicated ground-level storage.
Dimensions: Width: 38'0" | Depth: 64' 0" | Max Ridge Height: 37' 9"
Exterior Walls: 2x6
Ceiling Height: Lower Level: 9' | First Floor: 9' | Second Floor: 9'
Foundation Type: Pier | Optional: Piling or Walk Out (inquire)
Roof Details: Primary Pitch: 4 on 12 | Framing Type: Truss
Garage: Type: Attached, Drive Under | Area: 756 sq. ft. | 3 Cars | Side Entry
Share


























