1
/
of
7
4 Bed 4.5 Bath
3121 Sq. Ft. - Haddies Hideaway- ASMU
3121 Sq. Ft. - Haddies Hideaway- ASMU
Regular price
$1,895.00
Regular price
Sale price
$1,895.00
Unit price
/
per
Couldn't load pickup availability
Scroll down to view our 360 tour of this home!
To learn more about what's included with our plans Click here
Would you like to modify this plan? Submit a request form here
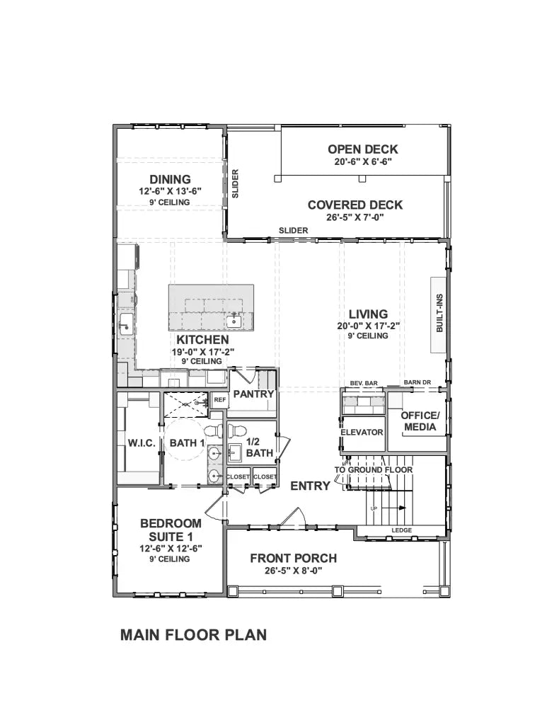
Plan Description
Sq Ft. - 3121 | Bed - 4 | Bath - 4.5 | Stories - 2 | Cars - 2 (Optional Bonus Room: Inquire)
Experience luxury living in this 2939 Sq. Ft. low country house plan, featuring 4 beds, 4.5 baths and 3,121 square feet of heated living space. Enjoy convenient parking for 2 vehicles, an elevator and storage on the ground level. The open living space on the first floor includes a partially covered deck and island kitchen with a nearby pantry. Rest comfortably in one of the four-bedroom suites, with laundry conveniently located on the top floor.
Dimensions: Width: 40'0" | Depth: 56' 0" | Max Ridge Height: 36' 9"
Exterior Walls: 2x6
Ceiling Height: Lower Level: 9' | First Floor: 9' | Second Floor: 9'
Foundation Type: Pier | Optional: Piling (inquire)
Roof Details: Primary Pitch: 4 on 12 | Secondary Pitch: 3 on 12 | Framing Type: Truss
Garage: Type: Attached, Drive Under | Area: 975 sq. ft. | 2 Cars | Front Entry
Share






