1
/
of
30
4 Bed 4 - 5 Bath
2797 Sq. Ft. - Haddies Hideaway 2700R FLG
2797 Sq. Ft. - Haddies Hideaway 2700R FLG
Regular price
$1,845.00
Regular price
Sale price
$1,845.00
Unit price
/
per
Couldn't load pickup availability
To learn more about what's included with our plans Click here
Would you like to modify this plan? Submit a request form here
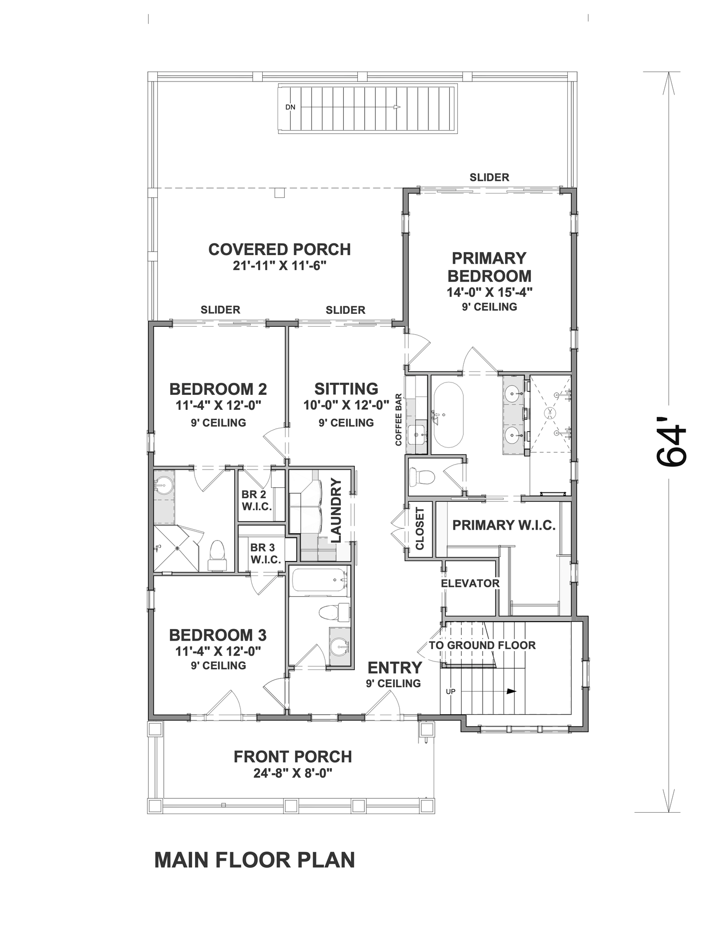
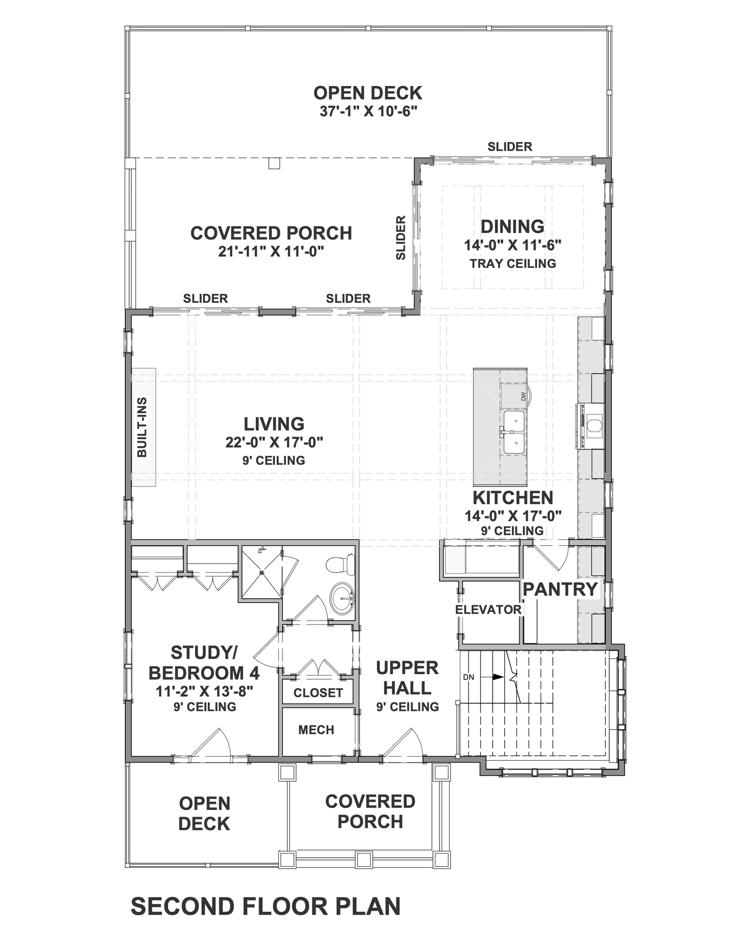
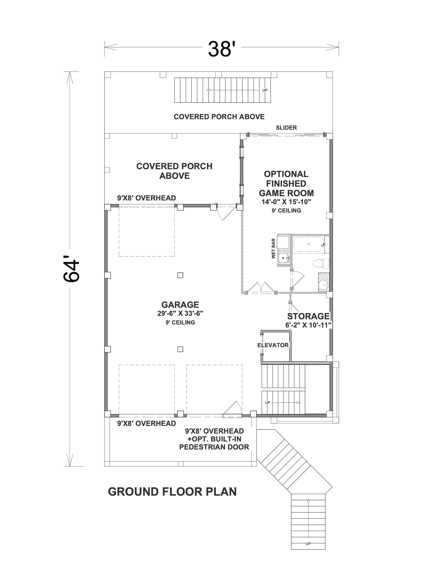
Plan Description
Sq Ft. - 2797 | Bed - 4 | Bath - 4 - 5 | Stories - 2 | Cars - 2 (Optional Bonus Room: Inquire)
The Haddies Hideaway 2700R FLG offers coastal contemporary living with front-access parking, an elevator to the shared living spaces, and an open top level with a partially covered deck. With three bedrooms on the main level, including a spacious primary suite with an oversized shower and walk-in closet, this home also features an island kitchen with ample workspace and a pantry for storage. An optional game room and dedicated storage room provide added convenience.
Dimensions: Width: 38'0" | Depth: 64' 0" | Max Ridge Height: 37' 9"
Exterior Walls: 2x6
Ceiling Height: Lower Level: 9' | First Floor: 9' | Second Floor: 9'
Foundation Type: Pier | Optional: Piling or Walk Out (inquire)
Roof Details: Primary Pitch: 4 on 12 | Secondary Pitch: 6 on 12 | Framing Type: Truss
Garage: Type: Attached, Drive Under | Area: 756 sq. ft. | 2 Cars | Front Entry
Share





























