4 Bed 4 Bath
2880 Sq. Ft. - The Maple
2880 Sq. Ft. - The Maple
Couldn't load pickup availability
To learn more about what's included with our plans Click here
Would you like to modify this plan? Submit a request form here
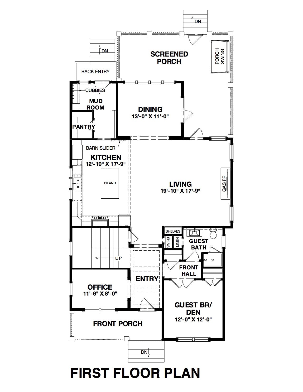
Plan Description
Sq Ft. - 2880 | Bed - 3/4 | Bath - 4 | Stories - 2
The Maple is a house plan designed for open entertaining, providing private spaces for all members of the family. The main floor includes a guest room with a full bathroom, working office, and open floor plan living space with a beautiful wrap-around porch. A rear entry allows this plan to accommodate a detached garage. The second-floor primary has two spacious W.I.C.'s and a dual-headed walk-in shower to complete the primary bedroom suite. Two additional bedrooms upstair have private bathrooms and spacious closets. There is also an open loft for added space. This plan features ample storage, a large pantry, and main floor laundry room.
Dimensions: Width: 33'8" | Depth: 63' 8" | Max Ridge Height: 35' 0"
Exterior Walls: 2x6
Ceiling Height: First Floor: 10' | Second Floor: 9'
Foundation Type: Crawl
Roof Details: Primary Pitch: 10 on 12 | Framing Type: Truss
Share












































