1
/
of
15
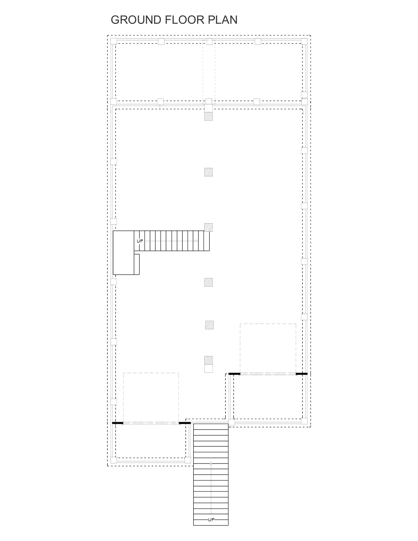
3 Bed 2 Bath
1600 Sq. Ft. - Magnolia Cottage
1600 Sq. Ft. - Magnolia Cottage
Regular price
$1,545.00
Regular price
Sale price
$1,545.00
Unit price
/
per
Couldn't load pickup availability
To learn more about what's included with our plans Click here
Would you like to modify this plan? Submit a request form here
Plan Description
Sq Ft. - 1600 | Bed - 3 | Bath - 2.5 | Stories - 2 | Cars - 2
Discover the perfect beach home with this 1600 sq. ft. rectangular cottage. Featuring a charming front porch, a primary suite with 5-fixture bath and walk-in closet, and vaulted shared living spaces, this home maximizes both space and views. With a spacious kitchen island, it's perfect for entertaining. This plan also has a drive-under garage with space for 2-3 cars (including pull-through or rear entry for 3rd card).
Dimensions: Width: 32'0" | Depth: 70' 0" | Max Ridge Height: 29' 0"
Exterior Walls: 2x6
Ceiling Height: Lower Level: 10' | First Floor: 9'
Foundation Type: Piling, Pier
Roof Details: Primary Pitch: 9 on 12 | Framing Type: Truss
Garage: Type: Attached, Drive Under | Area: 1515 sq. ft. | 2 Cars | Front Entry
Share














