1
/
of
7
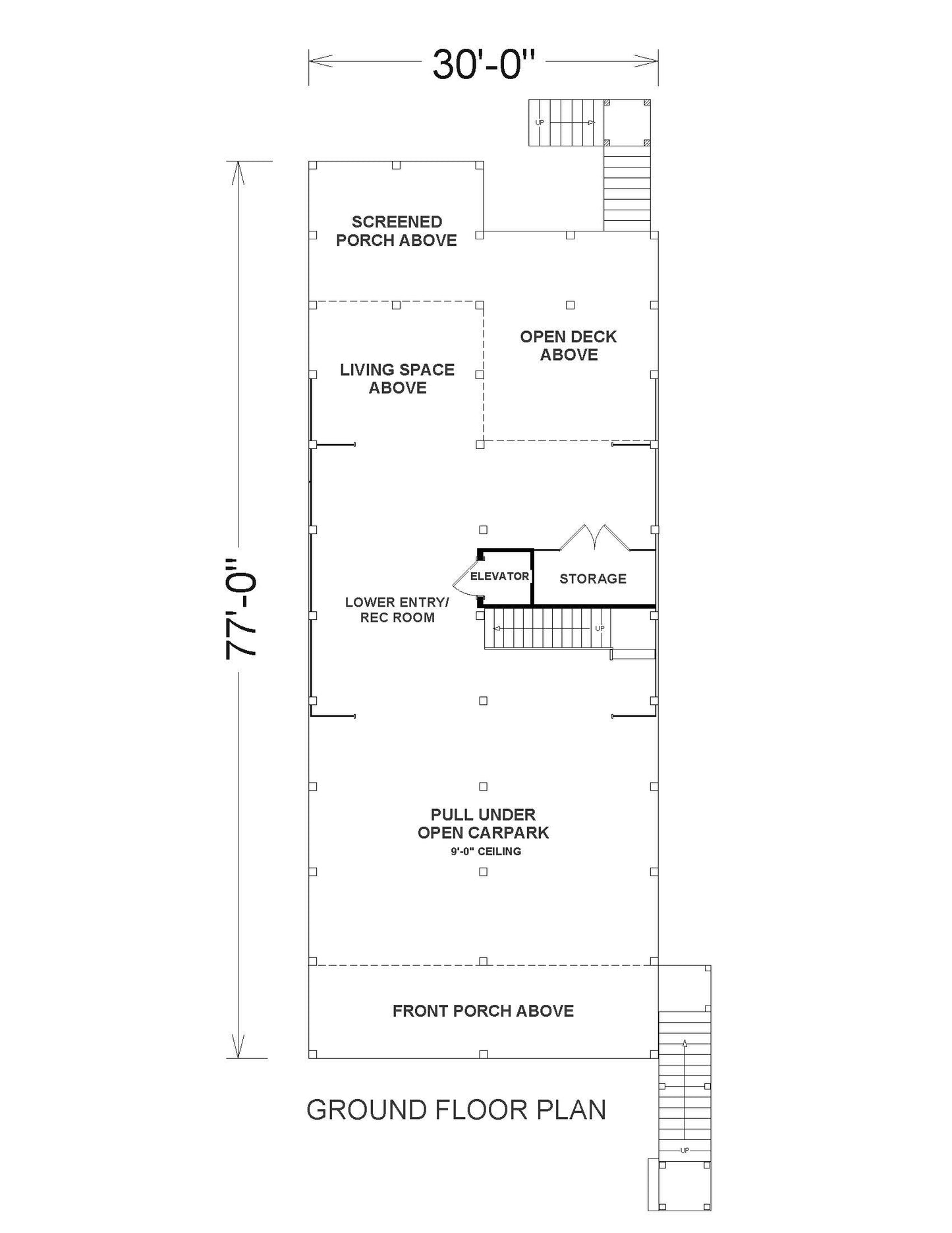
3 Bed 2 Bath
1547 Sq. Ft. - Magnolia Beach Hut CHP
1547 Sq. Ft. - Magnolia Beach Hut CHP
Regular price
$1,545.00
Regular price
$1,000.00
Sale price
$1,545.00
Shipping calculated at checkout.
Quantity
Couldn't load pickup availability
To learn more about what's included with our plans Click here
Would you like to modify this plan? Submit a request form here
Plan Description
Sq Ft. - 1430 | Bed - 3 | Bath - 2 | Stories - 1 | Cars - 2
Introducing the Magnolia Beach Hut CHP, an elevated coastal cottage house plan with 3 beds, 2 baths, and 1547 sq. ft. of living space. Enjoy a vaulted shared living space, grilling deck, and master suite with a walk-in closet and luxurious bath. Includes a 30' by 8' front porch and open rec room on the ground level. Experience luxury by the beach.
Dimensions: Width: 35'0" | Depth: 70' 0" | Max Ridge Height: 30'6"
Exterior Walls: 2x6
Ceiling Height: Lower Level: 9' | First Floor: 9'
Foundation Type: Piling, Pier
Roof Details: Primary Pitch: 8 on 12 | Framing Type: Truss
Garage: Type: Attached, Drive Under | Area: 668 sq. ft. | 2 Cars | Front Entry
Share
