2 Bed 1.5 Bath
955 Sq. Ft. - The Green House
955 Sq. Ft. - The Green House
Couldn't load pickup availability
To learn more about what's included with our plans Click here
Would you like to modify this plan? Submit a request form here
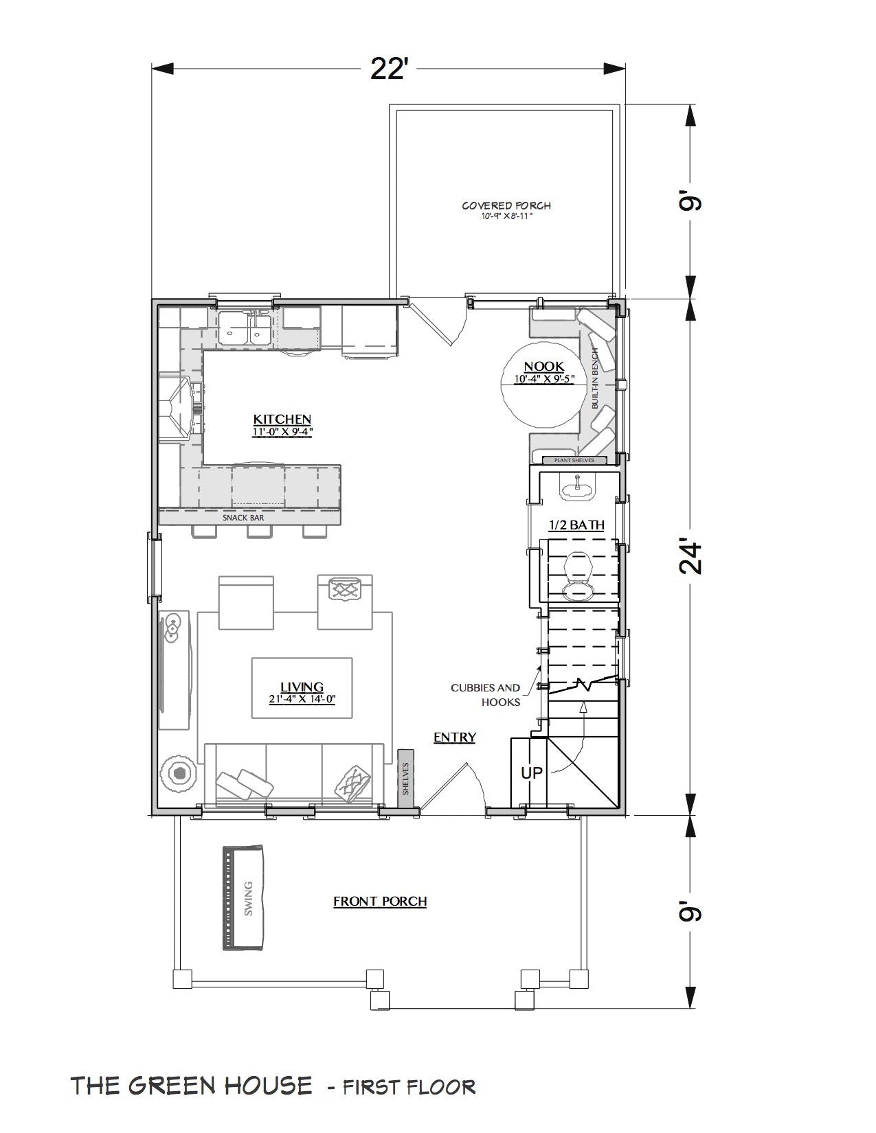
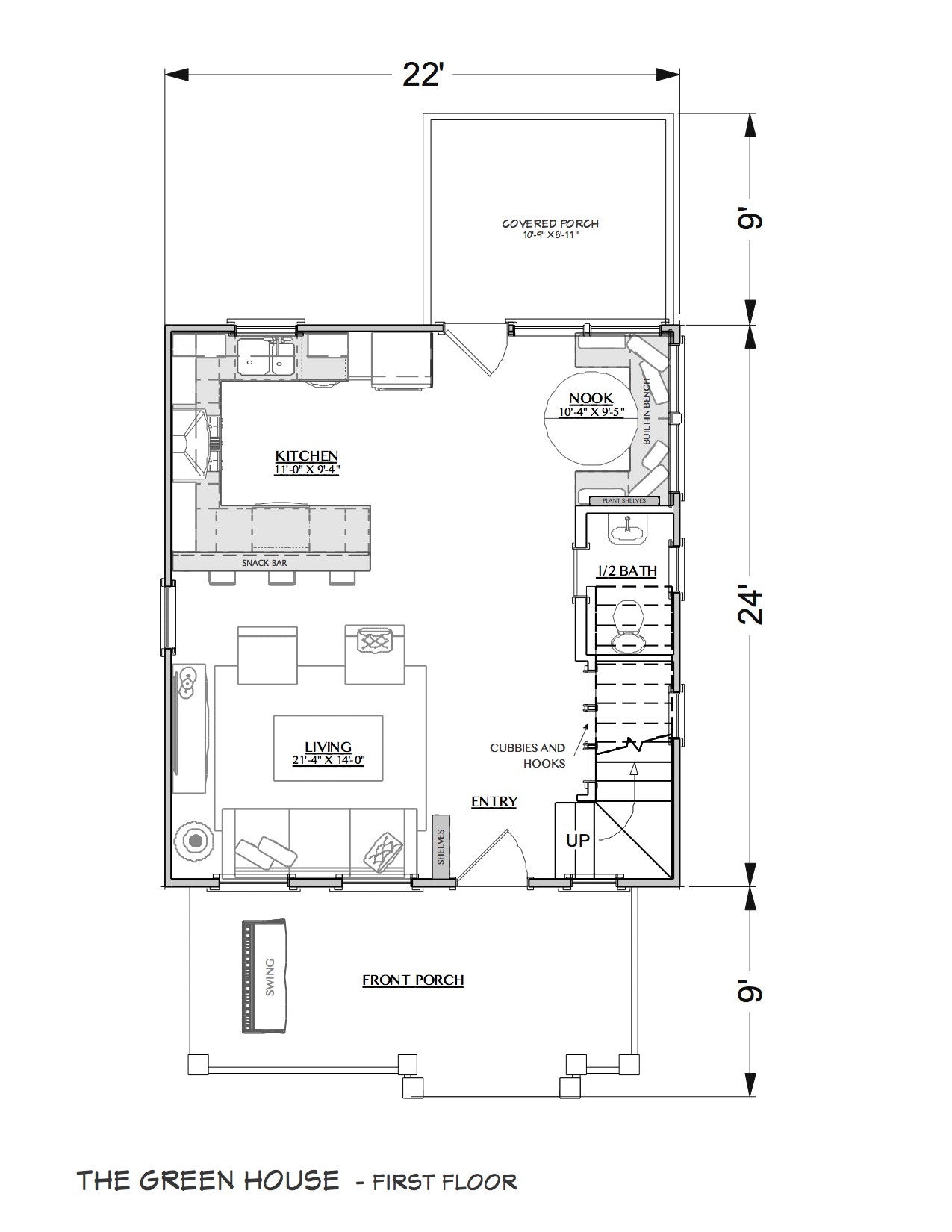
Plan Description
Sq Ft. - 955 | Bed - 2 | Bath - 1.5 | Stories - 2
This 955 SF, 2 bedroom, 1 1/2 bath cottage is perfect for the small home seeker, mother-in-law cottage, or guest house, and is suited towards roommates, small families, or individuals. The open floor plan is inviting and offers plenty of built-in storage. The smart booth provides plenty of space for seating and entertaining, or just lounging with your favorite book. There is a half bath beneath the stairs, a full chef's kitchen, access to a back porch which could be outfitted for a screen, open deck, patio with fire table, outdoor garden, or many other ways to extend your living spaces or bring you closer to the outdoors. The upstairs bedrooms have spacious closets and the bathroom has the option for dual sinks or an extended vanity space. So much to love about this adorable cottage plan!
Dimensions: Width: 22'0" | Depth: 42' 0" | Max Ridge Height: 35' 0"
Exterior Walls: 2x4
Ceiling Height: First Floor: 9' | Second Floor: 8'
Foundation Type: Slab
Roof Details: Primary Pitch: 12 on 12 | Framing Type: Truss
Share






